Υ.Α. ΥΠΕΝ/ΔΚΑΠΑ/92809/1615/2025 (ΦΕΚ 4837/Β` 12.9.2025)
| Συνημμένο | Μέγεθος |
|---|---|
| ΦΕΚ 4837Β_2025 | 1.91 MB |
1. Τις διατάξεις του άρθρου δεύτερου του ν. 2077/1992 «Κύρωση της συνθήκης για την Ευρωπαϊκή Ένωση και των σχετικών πρωτοκόλλων και δηλώσεων που περιλαμβάνονται στην Τελική Πράξη» (Α’ 136) και των άρθρων 1 και 2 (παρ. 1ζ) του ν. 1338/1983 «Εφαρμογή του Κοινοτικού Δικαίου» (Α’ 34) όπως τροποποιήθηκαν με το άρθρο 6 του ν. 1440/1984 «Συμμετοχή της Ελλάδος στο κεφάλαιο, στα αποθεματικά και στις προβλέψεις της Ευρωπαϊκής Τράπεζας Επενδύσεων στο κεφάλαιο της Ευρωπαϊκής Κοινότητας Άνθρακος και Χάλυβος του Οργανισμού Εφοδιασμού ΕΥΡΑΤΟΜ» (Α’ 70).
2. Τα άρθρα 14 (παρ. 2), 28, 29 και 30 του ν. 1650/1986 «Για την προστασία του περιβάλλοντος» (Α’ 160), όπως το άρθρο 28 τροποποιήθηκε με τα άρθρα 7 και 9 του ν. 4042/2012 (Α’ 24) και το άρθρο 30 (παρ. 1) με το άρθρο 21 του ν. 4014/2011 (Α’ 209).
3. Τον ν. 4622/2019 «Επιτελικό Κράτος: οργάνωση, λειτουργία και διαφάνεια της Κυβέρνησης, των κυβερνητικών οργάνων και της κεντρικής δημόσιας διοίκησης» (Α’ 133).
4. Τα άρθρα 19, 88 και 113 του ν. 5209/2025 «Κώδικας Οδικής Κυκλοφορίας και άλλες διατάξεις (Κ.Ο.Κ.)» (Α’ 100).
5. Το π.δ. 57/2010 «Προσαρμογή της Ελληνικής Νομοθεσίας προς την οδηγία 2006/42/ΕΚ του Ευρωπαϊκού Κοινοβουλίου και του Συμβουλίου “σχετικά με τα μηχανήματα και την τροποποίηση της οδηγίας 95/16/ΕΚ” και κατάργηση των π.δ. 18/96 και 377/93» (Α’ 97), καθώς και τις διατάξεις του Κανονισμού (ΕΕ) 1230/2023 του Ευρωπαϊκού Κοινοβουλίου και του Συμβουλίου της 14 ης Ιουνίου 2023 «σχετικά με τα μηχανήματα και την κατάργηση της οδηγίας 2006/42/ΕΚ του Ευρωπαϊκού Κοινοβουλίου και του Συμβουλίου και της οδηγίας 73/361/ ΕΟΚ του Συμβουλίου» (ΕΕL 165/29-6-2023), για τον οποίο εκδόθηκε διορθωτικό (ΕΕL 169/4-7-2023).
6. Τον κατ’ εξουσιοδότηση Κανονισμό (ΕΕ) 2024/1208 της Ευρωπαϊκής Επιτροπής της 16ης Νοεμβρίου 2023 «για την τροποποίηση της οδηγίας 2000/14/ΕΚ του Ευρωπαϊκού Κοινοβουλίου και του Συμβουλίου όσον αφορά τις μεθόδους μέτρησης αερόφερτου θορύβου που εκπέμπεται από εξοπλισμό χρησιμοποιούμενο σε εξωτερικούς χώρους» (ΕΕL 2.5.2024), για τον οποίο εκδόθηκε διορθωτικό 2024/90290 (ΕΕL 2024/1208, 8-5-2024).
7. Την υπ’ αρ. 37393/2028/2003 κοινή απόφαση των Υπουργών Οικονομίας και Οικονομικών, Εσωτερικών, Δημόσιας Διοίκησης και Αποκέντρωσης, Ανάπτυξης και Περιβάλλοντος, Χωροταξίας και Δημοσίων Έργων «Μέτρα και όροι για τις εκπομπές θορύβου στο περιβάλλον από εξοπλισμό προς χρήση σε εξωτερικούς χώρους» (Β’ 1418), όπως τροποποιήθηκε με την υπ’ αρ. 9272/471/2007 απόφαση (Β’ 286).
8. Την Οδηγία 2000/14/ΕΚ του Ευρωπαϊκού Κοινοβουλίου και του Συμβουλίου της 8ης Μαΐου 2000 «για την προσέγγιση των νομοθεσιών των κρατών μελών σχετικά με την εκπομπή θορύβου στο περιβάλλον από εξοπλισμό προς χρήση σε εξωτερικούς χώρους» (162), όπως τροποποιήθηκε με την οδηγία 2005/88/ΕΚ (344) για την οποία εκδόθηκε διορθωτικό (165), καθώς και με την οδηγία (ΕΕ) 2024/2839.
9. Την υπό στοιχεία Φ.01.2/56790/ΔΠΠ 1828/2016 κοινή απόφαση «Κανονιστικό πλαίσιο για τους οργανισμούς αξιολόγησης της συμμόρφωσης που δραστηριοποιούνται σε πεδία της ενωσιακής νομοθεσίας εναρμόνισης ή/και σε πεδία αμιγώς εθνικής τεχνικής βιομηχανικής νομοθεσίας, που εμπίπτουν στο πλαίσιο αρμοδιοτήτων της Γενικής Γραμματείας Βιομηχανίας» (Β’ 1897).
10. Την υπό στοιχεία ΕΗ3/0/15516/4-5-1981 απόφαση «Διαδικασία εγκρίσεως τύπου των μηχανημάτων έργων για την κυκλοφορία τους στην Ελλάδα» (Β’ 285).
11. Το π.δ. 132/2017 «Οργανισμός Υπουργείου Περιβάλλοντος και Ενέργειας» (Α’ 160).
12. Το π.δ. 77/2023 «Σύσταση Υπουργείου και μετονομασία Υπουργείων - Σύσταση, κατάργηση και μετονομασία Γενικών και Ειδικών Γραμματειών - Μεταφορά αρμοδιοτήτων, υπηρεσιακών μονάδων, θέσεων προσωπικού και εποπτευόμενων φορέων» (Α’ 130).
13. Το π.δ. 32/2024 «Διορισμός Υπουργών και Υφυπουργών» (Α’ 91).
14. Το π.δ. 27/2025 «Διορισμός Υπουργών, Αναπληρωτή Υπουργού, Υφυπουργών και Αντιπροέδρου της Κυβέρνησης» (Α’ 44).
15. Την υπό στοιχεία Υ 22/3-1-2024 απόφαση του Πρωθυπουργού: «Καθορισμός σειράς τάξης των Υπουργείων» (Β’ 28).
16. Την υπό στοιχεία Υ 7/19-3-2025 απόφαση του Πρωθυπουργού «Ανάθεση αρμοδιοτήτων στον Αναπληρωτή Υπουργό Υποδομών και Μεταφορών Κωνσταντίνο Κυρανάκη» (Β’ 1365).
17. Την υπ’ αρ. 22421/18.3.2025 κοινή απόφαση του Πρωθυπουργού και του Υπουργού Ανάπτυξης «Ανάθεση αρμοδιοτήτων στον Υφυπουργό Ανάπτυξης, Λάζαρο Τσαβδαρίδη» (Β’ 1315).
18. Την υπό στοιχεία ΥΠΕΝ/ΔΠΔΑ/43011/1058/29-04-2025 εισήγηση της Γ.Δ.Ο.Υ. του Υπουργείου Περιβάλλοντος και Ενέργειας.
19. Το γεγονός ότι από τις διατάξεις της παρούσας απόφασης δεν προκαλείται δαπάνη σε βάρος του κρατικού προϋπολογισμού.
20. Το γεγονός ότι οι διατάξεις της παρούσας δεν αφορούν σε διοικητική διαδικασία για την οποία υπάρχει υποχρέωση καταχώρισης στο Εθνικό Μητρώο Διοικητικών Διαδικασιών (ΕΜΔΔ) “ΜΙΤΟΣ”, αποφασίζουμε:
Με την παρούσα απόφαση τροποποιείται η υπ’ αρ. 37393/2028/2003 (Β’ 1418) κοινή απόφαση, σε συμμόρφωση (α) με τον κατ’ εξουσιοδότηση Κανονισμό (ΕΕ) 2024/1208 της Ευρωπαϊκής Επιτροπής της 16ης Νοεμβρίου 2023 «για την τροποποίηση της οδηγίας 2000/14/ΕΚ του Ευρωπαϊκού Κοινοβουλίου και του Συμβουλίου όσον αφορά τις μεθόδους μέτρησης αερόφερτου θορύβου που εκπέμπεται από εξοπλισμό χρησιμοποιούμενο σε εξωτερικούς χώρους» ως εξής:
Το Παράρτημα ΙΙΙ του άρθρου 16 αντικαθίσταται ως ακολούθως:
«Παράρτημα ΙΙΙ
ΜΕΘΟΔΟΙ ΜΕΤΡΗΣΗΣ ΑΕΡΟΦΕΡΤΟΥ ΘΟΡΥΒΟΥ ΠΟΥ ΕΚΠΕΜΠΕΤΑΙ ΑΠΟ ΕΞΟΠΛΙΣΜΟ ΧΡΗΣΙΜΟΠΟΙΟΥΜΕΝΟ ΣΕ ΕΞΩΤΕΡΙΚΟΥΣ ΧΩΡΟΥΣ
Εισαγωγή
Το παρόν παράρτημα περιλαμβάνει τις μεθόδους μέτρησης του αερόφερτου θορύβου οι οποίες πρέπει να χρησιμοποιούνται για τον καθορισμό των σταθμών ακουστικής ισχύος του εξοπλισμού προς χρήση σε εξωτερικούς χώρους.
Στο μέρος Α του παρόντος παραρτήματος καθορίζονται το βασικό πρότυπο εκπομπής θορύβου και γενικά συμπληρώματα του βασικού προτύπου εκπομπής θορύβου για τη μέτρηση της στάθμης ηχητικής πίεσης επί επιφανείας μέτρησης που περιβάλλει την πηγή θορύβου, καθώς και για τον υπολογισμό της στάθμης ακουστικής ισχύος που παράγεται από την εν λόγω πηγή.
Στο μέρος Β του παρόντος παραρτήματος καθορίζεται ο ειδικός για τον εξοπλισμό κώδικας δοκιμής θορύβου, ο οποίος παρουσιάζεται είτε ως αναφορά σε συγκεκριμένο πρότυπο είτε ως περιγραφή των εφαρμοστέων συνθηκών δοκιμής και λειτουργίας, συμπεριλαμβανομένων των εξής:
α) του περιβάλλοντος δοκιμής,
β) της τιμής της περιβαλλοντικής διόρθωσης (K2A),
γ) του σχήματος και των διαστάσεων της επιφάνειας μέτρησης,
δ) του πλήθους και της θέσης των προς χρήση μικροφώνων,
ε) των απαιτήσεων σχετικά με την τοποθέτηση και την εγκατάσταση του εξοπλισμού,
στ) μεθόδου υπολογισμού των σταθμών ακουστικής ισχύος στην περίπτωση που πρέπει να διενεργηθούν αρκετές δοκιμές υπό διαφορετικές συνθήκες λειτουργίας.
Κατά τις δοκιμές συγκεκριμένων τύπων εξοπλισμού, οι κατασκευαστές ή οι εγκατεστημένοι στην Ένωση εξουσιοδοτημένοι αντιπρόσωποί τους χρησιμοποιούν το βασικό πρότυπο εκπομπής θορύβου και τα γενικά συμπληρώματα του μέρους Α του παρόντος παραρτήματος, καθώς και τον ειδικό για τον εξοπλισμό κώδικα δοκιμής θορύβου που ορίζεται στο μέρος Β. Με τους κώδικες δοκιμών θορύβου του μέρους Β επιδιώκεται η συμπλήρωση των προδιαγραφών που ορίζονται στο μέρος Α, λαμβανομένων υπόψη των χαρακτηριστικών των διαφόρων κατηγοριών εξοπλισμού.
Όταν οι κώδικες δοκιμών θορύβου του μέρους Β προβλέπουν τη δυνατότητα επιλογής μεταξύ διαφορετικών εναλλακτικών τεχνικών λύσεων, οι κατασκευαστές ή οι εγκατεστημένοι στην Ένωση εξουσιοδοτημένοι αντιπρόσωποί τους χρησιμοποιούν εκείνες που συμφωνούν με τις προδιαγραφές του μέρους Α. Σε περίπτωση σύγκρουσης μεταξύ των μερών Α και Β, υπερισχύουν οι διατάξεις του μέρους Β. Όταν οι κώδικες δοκιμών θορύβου που ορίζονται στο μέρος Β ή στα πρότυπα που αναφέρονται στο μέρος Β δεν εφαρμόζονται για ορισμένα μοντέλα εξοπλισμού που ανήκουν στην οικεία κατηγορία εξοπλισμού, οι κατασκευαστές ή οι εγκατεστημένοι στην Ένωση εξουσιοδοτημένοι αντιπρόσωποί τους προσδιορίζουν την εγγυημένη στάθμη ακουστικής ισχύος σύμφωνα με το βασικό πρότυπο εκπομπής θορύβου και τα εφαρμοστέα συμπληρώματα που αναφέρονται στο μέρος Α.
Για τον εξοπλισμό που αναφέρεται στο άρθρο 12, σε περίπτωση που η χρήση των μεθόδων μέτρησης θορύβου που ορίζονται στο παρόν παράρτημα ή εκείνων που ορίζονται στην έκδοση του παραρτήματος III που εφαρμοζόταν πριν από τις 22 Μαΐου 2025, θα οδηγούσε σε δύο διαφορετικές καταστάσεις συμμόρφωσης του προϊόντος, δηλαδή η εγγυημένη στάθμη ακουστικής ισχύος του εξοπλισμού που υπολογίζεται με τη χρήση της μίας μεθόδου υπερβαίνει την αντίστοιχη επιτρεπόμενη στάθμη ακουστικής ισχύος του άρθρου 12, αλλά δεν την υπερβαίνει με τη χρήση της άλλης μεθόδου, οι κατασκευαστές ή οι εγκατεστημένοι στην Ένωση εξουσιοδοτημένοι αντιπρόσωποί τους προσδιορίζουν τη μετρούμενη στάθμη ακουστικής ισχύος και την εγγυημένη στάθμη ακουστικής ισχύος σύμφωνα με τις μεθόδους που ορίζονται στην έκδοση του παραρτήματος III που ίσχυε πριν από τις 22 Μαΐου 2025 ωσότου τροποποιηθούν οι επιτρεπόμενες στάθμες ακουστικής ισχύος του άρθρου 12. Στην περίπτωση αυτή, οι κοινοποιημένοι οργανισμοί και οι αρχές εποπτείας της αγοράς χρησιμοποιούν επίσης τη μέθοδο που ορίζεται στην έκδοση του παραρτήματος III που ίσχυε πριν από τις 22 Μαΐου 2025, για τη διενέργεια των δοκιμών θορύβου όταν αυτό απαιτείται στο πλαίσιο της εφαρμοστέας διαδικασίας αξιολόγησης της συμμόρφωσης.
Οι κατασκευαστές ή οι εγκατεστημένοι στην Ένωση εξουσιοδοτημένοι αντιπρόσωποί τους χρησιμοποιούν το βασικό πρότυπο εκπομπής θορύβου EN ISO 3744:2010 για τον καθορισμό της στάθμης ακουστικής ισχύος LWA, με την επιφύλαξη των γενικών συμπληρωμάτων που προβλέπονται στο παρόν μέρος Α. Οι κατασκευαστές ή οι εγκατεστημένοι στην Ένωση εξουσιοδοτημένοι αντιπρόσωποί τους εφαρμόζουν όλα τα εδάφια του προτύπου EN ISO 3744:2010, εκτός αν ορίζεται διαφορετικά στο παρόν μέρος Α ή στον ισχύοντα κώδικα δοκιμής θορύβου που ορίζεται στο μέρος Β του παρόντος παραρτήματος.
1. ΛΕΙΤΟΥΡΓΙΑ ΤΗΣ ΠΗΓΗΣ ΘΟΡΥΒΟΥ ΚΑΤΑ ΤΗ ΔΙΑΡΚΕΙΑ ΤΗΣ ΔΟΚΙΜΗΣ
1.1. Στροφές ανεμιστήρα
Τυχόν ανεμιστήρες που είναι τοποθετημένοι στον κινητήρα του εξοπλισμού ή στο υδραυλικό του σύστημα πρέπει να λειτουργούν κατά τη διάρκεια της δοκιμής. Οι κατασκευαστές ή οι εγκατεστημένοι στην Ένωση εξουσιοδοτημένοι αντιπρόσωποί τους καθορίζουν τις στροφές του ανεμιστήρα σύμφωνα με τις απαιτήσεις που ορίζονται στα στοιχεία α) έως δ), κατά περίπτωση, και δηλώνουν την τιμή των στροφών του ανεμιστήρα στην έκθεση δοκιμής και τη χρησιμοποιούν σε περαιτέρω μετρήσεις. Οι ανεμιστήρες δεν πρέπει να λειτουργούν με αντίστροφη φορά κατά τη διάρκεια των δοκιμών.
α) Ανεμιστήρας άμεσα συνδεόμενος με τον κινητήρα ή το υδραυλικό του σύστημα: Ο ανεμιστήρας που κινείται άμεσα από τον κινητήρα και/ή συνδέεται με τον υδραυλικό του εξοπλισμό πρέπει να λειτουργεί κατά τη διάρκεια της δοκιμής.
β) Ανεμιστήρας με ρύθμιση στροφών κατά βήματα:
Ο ανεμιστήρας του οποίου οι στροφές ρυθμίζονται κατά βήματα υποβάλλεται σε δοκιμή με έναν από τους ακόλουθους τρόπους:
i) στις μέγιστες στροφές λειτουργίας·
ii) κατά την πρώτη δοκιμή ο ανεμιστήρας ρυθμίζεται στη θέση μηδενικών στροφών, και κατά δεύτερη δοκιμή στη θέση μέγιστων στροφών.
Για τους σκοπούς του σημείου ii), η προκύπτουσα στάθμη ηχητικής πίεσης επιφάνειας με στάθμιση “Α” LpA υπολογίζεται από τον συνδυασμό των αποτελεσμάτων των δύο δοκιμών με τον ακόλουθο τύπο:
![]()
όπου:
— LpA,0 % η στάθμη ηχητικής πίεσης επιφάνειας με στάθμιση “Α” όπως προσδιορίζεται με τον ανεμιστήρα στη θέση μηδενικών στροφών·
— LpA,100 % η στάθμη ηχητικής πίεσης επιφάνειας με στάθμιση “Α” όπως προσδιορίζεται με τον ανεμιστήρα στη θέση μέγιστων στροφών·
γ) Ανεμιστήρας με συνεχή ρύθμιση στροφών:
Όταν ο ανεμιστήρας μπορεί να λειτουργεί με συνεχή ρύθμιση στροφών, η δοκιμή διεξάγεται σύμφωνα με το σημείο 1.1 στοιχείο β) ή με τον ανεμιστήρα να λειτουργεί σε στροφές τουλάχιστον 70 % των μέγιστων στροφών.
Οι ιξωδοστατικοί ανεμιστήρες, οι οποίοι ρυθμίζονται αυτόματα ανάλογα με τη θερμοκρασία του κινητήρα, θεωρείται ότι λειτουργούν με συνεχή ρύθμιση στροφών, ανεξάρτητα από την προέλευση του ελέγχου·
δ) Εξοπλισμός με περισσότερους από έναν ανεμιστήρες:
Όταν ένα μηχάνημα είναι εξοπλισμένο με περισσότερους από έναν ανεμιστήρες, όλοι οι ανεμιστήρες λειτουργούν υπό τις συνθήκες που ορίζονται στα στοιχεία α), β) ή γ), κατά περίπτωση.
1.2. Δοκιμή τεχνικού εξοπλισμού χωρίς φορτίο
Πριν από τη μέτρηση του θορύβου που εκπέμπεται από τεχνικό εξοπλισμό χωρίς φορτίο, οι κατασκευαστές ή οι εγκατεστημένοι στην Ένωση εξουσιοδοτημένοι αντιπρόσωποί τους προθερμαίνουν τον κινητήρα και το υδραυλικό σύστημα του εξοπλισμού σύμφωνα με τις οδηγίες χρήσης και τηρούν τις απαιτήσεις ασφάλειας.
Οι κατασκευαστές ή οι εγκατεστημένοι στην Ένωση εξουσιοδοτημένοι αντιπρόσωποί τους μετρούν τον θόρυβο με τον εξοπλισμό σε θέση ακινησίας, δηλαδή χωρίς να λειτουργεί ο εξοπλισμός εργασίας ή ο μηχανισμός κίνησης. Για τους σκοπούς της μέτρησης, ο κινητήρας ρυθμίζεται σε στροφές βραδυπορίας (ρελαντί) (1) τουλάχιστον ίσες προς τις ονομαστικές στροφές που αντιστοιχούν στην καθαρή ισχύ(2).
Αν το μηχάνημα τροφοδοτείται από γεννήτρια ή το κύριο δίκτυο, η συχνότητα της παροχής ρεύματος, που προδιαγράφεται για τον κινητήρα από τον κατασκευαστή, πρέπει να είναι σταθερή ± 1 Hz αν το μηχάνημα είναι εξοπλισμένο με επαγωγικό κινητήρα, και η τάση τροφοδότησης ίση με ± 1 % της ονομαστικής τάσης αν το μηχάνημα είναι εξοπλισμένο με κινητήρα με συλλέκτη. Η τάση τροφοδότησης μετριέται στο βύσμα μη αποσπώμενου αγωγού ή καλωδίου, ή στην είσοδο του μηχανήματος εάν παρέχεται αποσπώμενο καλώδιο. Η μορφή του κύματος του ρεύματος που παρέχεται από τη γεννήτρια πρέπει να είναι η ίδια με τη μορφή του ρεύματος από το κύριο δίκτυο.
Όταν στη σήμανση του μηχανήματος αναφέρονται περισσότερα από ένα εύρη τιμών τάσης, οι κατασκευαστές ή οι εγκατεστημένοι στην Ένωση εξουσιοδοτημένοι αντιπρόσωποί τους πραγματοποιούν τις μετρήσεις στο υψηλότερο αναφερόμενο εύρος τιμών τάσης. Αν το εύρος τάσης είναι 220-240 V, η δοκιμή εκτελείται στα 230 V. Αν το μηχάνημα τροφοδοτείται από έναν ή περισσότερους συσσωρευτές, οι συσσωρευτές φορτίζονται τουλάχιστον στο 70 % της χωρητικότητάς τους.
Οι ονομαστικές στροφές που χρησιμοποιούνται και η αντίστοιχη καθαρή ισχύς δηλώνονται από τους κατασκευαστές ή τους εγκατεστημένους στην Ένωση εξουσιοδοτημένους αντιπροσώπους τους και αναφέρονται στην έκθεση δοκιμής.
Όταν ο εξοπλισμός διαθέτει πολλούς κινητήρες, οι κινητήρες αυτοί λειτουργούν ταυτόχρονα κατά τη διάρκεια των μετρήσεων, εκτός αν αυτό δεν είναι εφικτό, οπότε, στην περίπτωση αυτή, μετριούνται οι εκπομπές θορύβου από κάθε πιθανό συνδυασμό κινητήρων.
(1) Η βραδυπορία του κινητήρα μπορεί να επιτευχθεί είτε στις χαμηλότερες στροφές του κινητήρα (πλήρης απενεργοποίηση του επιταχυντή) είτε στις χαμηλότερες στροφές του κινητήρα που απαιτούνται για την εκτέλεση των βασικών λειτουργιών, συμπεριλαμβανομένης της παροχής επαρκούς υδραυλικής πίεσης για τη μετακίνηση του μηχανήματος ή οποιουδήποτε από τα εργαλεία του, ανάλογα με την κατηγορία των συγκεκριμένων ειδών τεχνικού εξοπλισμού.
(2) Ως καθαρή ισχύς νοείται η ισχύς του κινητήρα σε kW που λαμβάνεται σε πάγκο δοκιμών στο άκρο στροφαλοφόρου άξονα, ή ισοδύναμου κατασκευαστικού στοιχείου, μετρούμενη σύμφωνα με τη μέθοδο μέτρησης της ισχύος κινητήρων εσωτερικής καύσης που ορίζεται στον κανονισμό αριθ. 120 αναθεώρηση 2 της Οικονομικής Επιτροπής των Ηνωμένων Εθνών για την Ευρώπη (ΟΕΕ/ΗΕ) — Ενιαίες διατάξεις για την έγκριση κινητήρων εσωτερικής καύσης που προορίζονται για τοποθέτηση σε γεωργικούς και δασικούς ελκυστήρες και σε εκτός δρόμου κινητά μηχανήματα, όσον αφορά τη μέτρηση της καθαρής ισχύος, της καθαρής ροπής και της ειδικής κατανάλωσης καυσίμου (ΕΕ L 166 της 30.6.2015, σ. 170).
1.3. Δοκιμή έμφορτου τεχνικού εξοπλισμού με κινητήρα
Πριν από τη μέτρηση του θορύβου που εκπέμπεται από τον έμφορτο τεχνικό εξοπλισμό, οι κατασκευαστές ή οι εγκατεστημένοι στην Ένωση εξουσιοδοτημένοι αντιπρόσωποί τους προθερμαίνουν τον κινητήρα (κινητήρια διάταξη) και το υδραυλικό σύστημα του εξοπλισμού σύμφωνα με τις οδηγίες χρήσης και τηρούν τις απαιτήσεις ασφάλειας. Οι κατασκευαστές ή οι εγκατεστημένοι στην Ένωση εξουσιοδοτημένοι αντιπρόσωποί τους δεν χρησιμοποιούν διάταξη εκπομπής ηχητικού σήματος, όπως προειδοποιητική κόρνα ή βομβητή οπισθοπορίας, κατά τη διάρκεια της μέτρησης. Οι κατασκευαστές ή οι εγκατεστημένοι στην Ένωση εξουσιοδοτημένοι αντιπρόσωποί τους καταγράφουν τις στροφές ή την ταχύτητα του εξοπλισμού κατά τη διάρκεια της μέτρησης και δηλώνουν τις εν λόγω στροφές ή την εν λόγω ταχύτητα στην έκθεση δοκιμής. Όταν ο εξοπλισμός διαθέτει πολλούς κινητήρες ή συγκροτήματα, οι εν λόγω κινητήρες ή τα εν λόγω συγκροτήματα λειτουργούν ταυτόχρονα κατά τη διάρκεια των μετρήσεων, εκτός αν αυτό δεν είναι εφικτό, οπότε, στην περίπτωση αυτή, οι κατασκευαστές μετρούν τον θόρυβο που εκπέμπει κάθε πιθανός συνδυασμός κινητήρων ή συγκροτημάτων.
Οι κατασκευαστές ή οι εγκατεστημένοι στην Ένωση εξουσιοδοτημένοι αντιπρόσωποί τους καθορίζουν ειδικές συνθήκες λειτουργίας για κάθε τύπο έμφορτου εξοπλισμού. Οι ειδικές συνθήκες λειτουργίας προκαλούν, στο μέτρο του δυνατού, επιδράσεις και οχλήσεις παρόμοιες με τις επικρατούσες υπό πραγματικές συνθήκες εργασίας.
1.4. Δοκιμή τεχνικού εξοπλισμού χειρισμού χειρός
Οι κατασκευαστές ή οι εγκατεστημένοι στην Ένωση εξουσιοδοτημένοι αντιπρόσωποί τους καθορίζουν τις συμβατικές συνθήκες λειτουργίας για κάθε τύπο τεχνικού εξοπλισμού χειρισμού χειρός που προκαλεί επιδράσεις και οχλήσεις παρόμοιες με τις επικρατούσες υπό πραγματικές συνθήκες εργασίας.
2. ΥΠΟΛΟΓΙΣΜΟΣ ΣΤΑΘΜΗΣ ΗΧΗΤΙΚΗΣ ΠΙΕΣΗΣ ΕΠΙΦΑΝΕΙΑΣ
Οι κατασκευαστές ή οι εγκατεστημένοι στην Ένωση εξουσιοδοτημένοι αντιπρόσωποί τους καθορίζουν τη στάθμη ηχητικής πίεσης επιφάνειας τουλάχιστον τρεις φορές. Αν τουλάχιστον δύο από τις καθοριζόμενες τιμές δεν διαφέρουν περισσότερο από 1 dB, δεν απαιτούνται περαιτέρω μετρήσεις. Σε αντίθετη περίπτωση, οι κατασκευαστές ή οι εγκατεστημένοι στην Ένωση εξουσιοδοτημένοι αντιπρόσωποί τους συνεχίζουν τις μετρήσεις μέχρι να ληφθούν δύο τιμές που να μη διαφέρουν περισσότερο από 1 dB. Η στάθμη ηχητικής πίεσης επιφάνειας με στάθμιση “Α” που πρέπει να χρησιμοποιήσουν οι κατασκευαστές ή οι εγκατεστημένοι στην Ένωση εξουσιοδοτημένοι αντιπρόσωποί τους για τον υπολογισμό της στάθμης ακουστικής ισχύος αποτελεί τον αριθμητικό μέσο των δύο υψηλότερων τιμών που δεν διαφέρουν περισσότερο από 1 dB. Όταν είναι εφικτό, οι κατασκευαστές ή οι εγκατεστημένοι στην Ένωση εξουσιοδοτημένοι αντιπρόσωποί τους λαμβάνουν τις μετρήσεις θορύβου σε όλες τις θέσεις των μικροφώνων ταυτόχρονα. Αυτό είναι ιδιαίτερα σημαντικό για τις δυναμικές δοκιμές. Όταν αυτό δεν είναι εφικτό, οι κατασκευαστές ή οι εγκατεστημένοι στην Ένωση εξουσιοδοτημένοι αντιπρόσωποί τους μεριμνούν ιδιαίτερα ώστε να εξασφαλίζονται σταθερές συνθήκες στο περιβάλλον δοκιμών και να ελαχιστοποιούνται οι κίνδυνοι συμπερίληψης ανεπιθύμητων διακυμάνσεων του θορύβου που εκπέμπεται από το μηχάνημα ή από άλλους παράγοντες, συμπεριλαμβανομένου του θορύβου βάθους και της ταχύτητας του ανέμου.
3. ΠΛΗΡΟΦΟΡΙΕΣ ΠΟΥ ΠΡΕΠΕΙ ΝΑ ΠΕΡΙΛΑΜΒΑΝΟΝΤΑΙ ΣΤΗΝ ΕΚΘΕΣΗ
Η έκθεση δοκιμής, η οποία απαιτείται στο πλαίσιο του τεχνικού φακέλου που προβλέπεται στο παράρτημα V σημείο 3, στο παράρτημα VI σημείο 3, στο παράρτημα VII σημείο 2 και στο παράρτημα VIII σημεία 3.1 και 3.3, περιέχει τα τεχνικά δεδομένα που είναι αναγκαία για την ταυτοποίηση της υπό δοκιμή πηγής θορύβου, τον κώδικα δοκιμής θορύβου και τα ακουστικά δεδομένα που χρησιμοποιήθηκαν και ελήφθησαν κατά τη διάρκεια της δοκιμής. Η τιμή της στάθμης ακουστικής ισχύος με στάθμιση “Α” της υπό δοκιμή πηγής θορύβου που πρέπει να περιλαμβάνεται στην έκθεση στρογγυλοποιείται στον πλησιέστερο ακέραιο αριθμό (για δεκαδικό κλάσμα μικρότερο του 0,5 χρησιμοποιείται η μικρότερη ακέραια τιμή· για δεκαδικό κλάσμα μεγαλύτερο ή ίσο του 0,5, χρησιμοποιείται η μεγαλύτερη ακέραια τιμή). Όταν, για τους λόγους και υπό τους όρους που ορίζονται στην τελευταία παράγραφο της εισαγωγής του παρόντος παραρτήματος, οι κατασκευαστές ή οι εγκατεστημένοι στην Ένωση εξουσιοδοτημένοι αντιπρόσωποί τους χρησιμοποιούν τις μεθόδους που ορίζονται στην έκδοση του παραρτήματος III που ίσχυε πριν από τις 22 Μαΐου 2025 για τον προσδιορισμό της στάθμης ακουστικής ισχύος, οι κατασκευαστές ή οι εγκατεστημένοι στην Ένωση εξουσιοδοτημένοι αντιπρόσωποί τους τηρούν αρχείο στην έκθεση δοκιμής των δεδομένων σχετικά με τις μετρήσεις που πραγματοποιήθηκαν σύμφωνα και με τις δύο μεθόδους: τις μεθόδους που ορίζονται στην έκδοση του παραρτήματος III που ίσχυε πριν από τις 22 Μαΐου 2025 και τις μεθόδους που ορίζονται στο παρόν παράρτημα. Οι αρμόδιες εθνικές αρχές και οι κοινοποιημένοι οργανισμοί αποδέχονται για μοντέλα εξοπλισμού των οποίων το πρώτο στοιχείο διατέθηκε στην αγορά ή τέθηκε σε λειτουργία πριν από τις 22 Μαΐου 2025 τις τεχνικές εκθέσεις των μετρήσεων θορύβου που εκτελέστηκαν σύμφωνα με τις μεθόδους που ορίζονται στην έκδοση του παραρτήματος III η οποία ίσχυε πριν από τις 22 Μαΐου 2025, για τους σκοπούς της αξιολόγησης της συμμόρφωσης στο πλαίσιο των διαδικασιών που αναφέρονται στο άρθρο 5 της παρούσας απόφασης και για τους σκοπούς των απαιτήσεων σχετικά με τον τεχνικό φάκελο για τα προϊόντα αυτά που προβλέπεται στο παράρτημα V σημείο 3, στο παράρτημα VI σημείο 3, στο παράρτημα VII σημείο 2, στο παράρτημα VIII σημεία 3.1 και 3.3 της παρούσας απόφασης έως τις 22 Μαΐου 2028.
4. ΠΕΡΙΒΑΛΛΟΝΤΙΚΗ ΔΙΟΡΘΩΣΗ K2A
Οι κατασκευαστές ή οι εγκατεστημένοι στην Ένωση εξουσιοδοτημένοι αντιπρόσωποί τους ορίζουν την περιβαλλοντική διόρθωση K2A σύμφωνα με το πρότυπο EN ISO 3744:2010 τμήμα 4.3.
Αν K2A ≤ 0,5 dB, μπορεί να αγνοηθεί.
Αν K2A > 4 dB, το περιβάλλον δοκιμής δεν πληροί τις απαιτήσεις της παρούσας οδηγίας και τροποποιείται.
Οι κατασκευαστές ή οι εγκατεστημένοι στην Ένωση εξουσιοδοτημένοι αντιπρόσωποί τους χρησιμοποιούν τις προδιαγραφές για την περιβαλλοντική διόρθωση που καθορίζονται στον κώδικα δοκιμής θορύβου για το συγκεκριμένο είδος τεχνικού εξοπλισμού που αναφέρεται στο μέρος Β του παρόντος παραρτήματος, εφόσον υπάρχουν τέτοιες προδιαγραφές.
0. ΤΕΧΝΙΚΟΣ ΕΞΟΠΛΙΣΜΟΣ ΠΟΥ ΥΠΟΒΑΛΛΕΤΑΙ ΣΕ ΔΟΚΙΜΗ ΧΩΡΙΣ ΦΟΡΤΙΟ
Πεδίο δοκιμής
Ανακλαστική επιφάνεια σκυροδέματος ή μη πορώδους ασφάλτου
Περιβαλλοντική διόρθωση K2A
K2A = 0
Επιφάνεια μέτρησης/αριθμός θέσεων μικροφώνων/απόσταση μέτρησης
α) Αν η μεγαλύτερη διάσταση του παραλληλεπιπέδου αναφοράς δεν υπερβαίνει 8 m: ημισφαίριο/έξι θέσεις μικροφώνου σύμφωνα με το πρότυπο EN ISO 3744:2010, παράρτημα F.
β) Αν η μεγαλύτερη διάσταση του παραλληλεπιπέδου αναφοράς υπερβαίνει 8 m: παραλληλεπίπεδο σύμφωνα με το πρότυπο ISO 3744:2010 με απόσταση μέτρησης
d = 1 m.
Δοκιμή χωρίς φορτίο
Οι έλεγχοι θορύβου διενεργούνται σύμφωνα με το μέρος Α σημείο 1.2 του παρόντος παραρτήματος.
Διάρκεια παρατήρησης/προσδιορισμός της προκύπτουσας στάθμης ακουστικής ισχύος όταν ισχύουν περισσότερες της μίας συνθήκες λειτουργίας
Η παρατήρηση διαρκεί τουλάχιστον 15 δευτερόλεπτα ή τουλάχιστον 3 κύκλους λειτουργίας του μηχανήματος.
1. ΕΝΑΕΡΙΕΣ ΕΞΕΔΡΕΣ ΜΕ ΚΙΝΗΤΗΡΑ ΕΣΩΤΕΡΙΚΗΣ ΚΑΥΣΗΣ
EN 280-1:2022, εδάφιο 4.12.2.
2. ΠΕΡΙΣΤΡΟΦΙΚΟΙ ΕΚΘΑΜΝΩΤΕΣ
EN ISO 22868:2021
3. ΑΝΑΒΑΤΟΡΙΑ ΓΙΑ ΔΟΜΙΚΑ ΥΛΙΚΑ
Βλέπε αριθ. 0.
Το γεωμετρικό κέντρο του μηχανήματος τοποθετείται επάνω από το κέντρο του ημισφαιρίου. Το αναβατόριο κινείται χωρίς φορτίο και εξέρχεται του ημισφαιρίου —αν χρειάζεται— από το σημείο 1.
4. ΜΗΧΑΝΙΚΕΣ ΠΡΙΟΝΟΚΟΡΔΕΛΕΣ ΕΡΓΟΤΑΞΙΩΝ
EN ISO 19085-16:2021, εδάφιο 6.2.2.
Εφαρμόζεται η μέθοδος μέτρησης αυτού του προτύπου που βασίζεται στο πρότυπο EN ISO 3744:2010.
5. ΔΙΣΚΟΠΡΙΟΝΑ ΕΡΓΟΤΑΞΙΩΝ
Επιφάνεια μέτρησης/αριθμός θέσεων μικροφώνων/απόσταση μέτρησης ISO 7960:1995, παράρτημα A, απόσταση μέτρησης d = 1 m.
Δοκιμή με φορτίο
ISO 7960:1995, παράρτημα A (μόνο σημείο Α2β)
Διάρκεια παρατήρησης ISO 7960:1995, παράρτημα A
6. α) ΦΟΡΗΤΑ ΑΛΥΣΟΠΡΙΟΝΑ
Εξοπλισμός με κινητήρα εσωτερικής καύσης
EN ISO 22868:2021
β) Εξοπλισμός με ηλεκτροκινητήρα
EN 62841-4-1:2020, παράρτημα I
7. ΣΥΝΔΥΑΣΜΕΝΑ ΟΧΗΜΑΤΑ ΓΙΑ ΕΚΠΛΥΣΗ ΥΠΟ ΥΨΗΛΗ ΠΙΕΣΗ ΚΑΙ ΓΙΑ ΑΝΑΡΡΟΦΗΣΗ
Όταν και οι δύο διατάξεις μπορούν να λειτουργήσουν ταυτόχρονα, πρέπει να λειτουργούν σύμφωνα με τα σημεία 26 και 52 του παρόντος μέρους Β. Αν όχι, οι εκπομπές θορύβου και των δύο συσκευών μετριούνται χωριστά και διατηρούνται οι υψηλότερες τιμές.
8. ΜΗΧΑΝΗΜΑΤΑ ΣΥΜΠΥΚΝΩΣΗΣ
α) Δονητικές πλάκες και δονητικοί κριοί
EN 500-4: 2011, εδάφιο 5.10.1
β) Οδοστρωτήρες
EN 474-13:2022, εδάφιο 4.6
9. ΑΕΡΟΣΥΜΠΙΕΣΤΕΣ EN ISO 2151:2008
Η παρατήρηση διαρκεί τουλάχιστον 15 δευτερόλεπτα.
10. ΣΥΣΚΕΥΕΣ ΘΡΑΥΣΗΣ ΣΚΥΡΟΔΕΜΑΤΟΣ ΚΑΙ ΑΕΡΟΣΦΥΡΕΣ ΧΕΙΡΟΣ
α) Εξοπλισμός με κινητήρα εσωτερικής καύσης Επιφάνεια μέτρησης/αριθμός θέσεων μικροφώνων/απόσταση μέτρησης Ημισφαίριο/έξι θέσεις μικροφώνων σύμφωνα με το πρότυπο EN ISO 3744:2010, παράρτημα F και τον ακόλουθο πίνακα, ανάλογα με το βάρος του εξοπλισμού σύμφωνα με τον ακόλουθο πίνακα:

Τοποθέτηση του μηχανήματος
Όλα τα μηχανήματα ελέγχονται σε κατακόρυφη θέση.
Αν το υπό δοκιμή μηχάνημα διαθέτει σωλήνα εξαγωγής αερίων, ο άξονας του σωλήνα πρέπει να ισαπέχει από θέσεις δύο μικροφώνων. Ο θόρυβος της πηγής ενέργειας δεν πρέπει να επηρεάζει τη μέτρηση της εκπομπής θορύβου από το υπό δοκιμή μηχάνημα.
Στήριξη του μηχανήματος
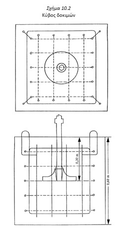
Κατά τη διάρκεια της δοκιμής, το μηχάνημα στηρίζεται σε εργαλείο εμπηγμένο σε κύβο σκυροδέματος τοποθετημένο σε φρέαρ από σκυρόδεμα.
Κατά τη διάρκεια των δοκιμών είναι δυνατόν να παρεμβάλλεται χαλύβδινο τεμάχιο μεταξύ του μηχανήματος και του εργαλείου στήριξης. Αυτό το ενδιάμεσο τεμάχιο πρέπει να συνδέει σταθερά το μηχάνημα και το εργαλείο στήριξης. Στο σχήμα 10.1 απεικονίζονται αυτές τις απαιτήσεις.
Χαρακτηριστικά του κύβου
Ο κύβος έχει ακμή μήκους 0,60 m ± 2 mm με όσο το δυνατόν πιο ομαλό σχήμα. Είναι κατασκευασμένος από οπλισμένο σκυρόδεμα πλήρως δονημένο σε στρώσεις πάχους έως 0,20 m για την αποφυγή υπερβολικής ιζηματοποίησης.
Ποιότητα σκυροδέματος
Το σκυρόδεμα πρέπει να είναι κατηγορίας C 50/60 σύμφωνα με το πρότυπο EN 206:2013+A2:2021. Ο κύβος πρέπει να είναι οπλισμένος με ανεξάρτητες χαλύβδινες ράβδους διαμέτρου 8 mm, χωρίς συνδετήρες, σύμφωνα με το σχήμα 10.2.
Εργαλείο στήριξης
Το εργαλείο πακτώνεται στον κύβο και αποτελείται από μηχανικό κριό με διάμετρο από 178 mm έως 220 mm και από σφιγκτήρα πανομοιότυπο με εκείνον που χρησιμοποιείται συνήθως με το υπό δοκιμή μηχάνημα και σύμφωνο προς το ISO 1180:1983/Add 1:1985, μήκους επαρκούς για να καθιστά δυνατή τη διεξαγωγή της δοκιμής.
Με την κατάλληλη διεργασία συνδέονται τα δύο στοιχεία. Το εργαλείο στερεώνεται στον κύβο με τρόπο ώστε η κάτω επιφάνεια του μηχανικού κριού να απέχει 0,30 m από την επάνω επιφάνεια του κύβου (βλέπε το σχήμα 10.2).
Ο κύβος παραμένει μηχανικά άθικτος, ειδικά στο σημείο επαφής του εργαλείου στήριξης και του σκυροδέματος. Πριν και μετά από κάθε δοκιμή επαληθεύεται ότι το εργαλείο είναι πλήρως πακτωμένο στον κύβο.
Τοποθέτηση του κύβου
Ο κύβος τοποθετείται μέσα σε φρέαρ πλήρες με σκυρόδεμα, το οποίο καλύπτεται από προστατευτική πλάκα τουλάχιστον 100 kg/m2, όπως παρουσιάζεται στο σχήμα 10.3, με τρόπο ώστε η επάνω επιφάνεια της προστατευτικής πλάκας να είναι ισόπεδη με το έδαφος. Για την αποφυγή τυχόν παρασιτικών θορύβων, ο κύβος πρέπει να μονώνεται έναντι του πυθμένα και των τοιχωμάτων του φρέατος με ελαστικά τεμάχια, των οποίων η οριακή συχνότητα απορρόφησης δεν πρέπει να υπερβαίνει το ήμισυ της ταχύτητας κρούσης του υπό δοκιμή μηχανήματος, εκφρασμένη σε κρούσεις ανά δευτερόλεπτο.
Το άνοιγμα της προστατευτικής πλάκας, μέσα από το οποίο διέρχεται ο σφιγκτήρας του εργαλείου, πρέπει να είναι όσο το δυνατόν μικρότερο και να σφραγίζεται με εύκαμπτο ηχομονωτικό σφράγισμα.
Δοκιμή με φορτίο
Το υπό δοκιμή μηχάνημα συνδέεται με το εργαλείο στήριξης.
Το υπό δοκιμή μηχάνημα τίθεται σε λειτουργία ομαλά, ώστε να λειτουργεί με την ίδια ακουστική σταθερότητα όπως κατά την κανονική λειτουργία. Το υπό δοκιμή μηχάνημα λειτουργεί με τη μέγιστη ισχύ, όπως αυτή ορίζεται στις οδηγίες χρήσης που παρέχονται από τον κατασκευαστή στον αγοραστή.
Διάρκεια παρατήρησης
Η παρατήρηση διαρκεί τουλάχιστον 15 δευτερόλεπτα.



Η τιμή του Α πρέπει να είναι τόση ώστε η προστατευτική πλάκα που στηρίζεται στον ελαστικό αρμό J να είναι ισόπεδη με το έδαφος.
β) Εξοπλισμός με ηλεκτροκινητήρα EN IEC 62841-2-6:2020, EN IEC 62841-2-6:2020/A11:2020, παράρτημα I, εδάφιο I.2
γ) Πνευματικός ή υδραυλικός εξοπλισμός Ίδιος με τον εξοπλισμό με κινητήρα εσωτερικής καύσης.
11. ΑΝΑΜΕΙΚΤΗΡΕΣ ΣΚΥΡΟΔΕΜΑΤΟΣ ή ΚΟΝΙΑΜΑΤΟΣ
Δοκιμή με φορτίο
Η συσκευή ανάδευσης (περιστρεφόμενο τύμπανο) πληρούται μέχρι την ονομαστική της χωρητικότητα με άμμο κόκκων 0-3 mm και υγρασία 4–10 %.
Η συσκευή ανάδευσης λειτουργεί τουλάχιστον στις ονομαστικές της στροφές.
Διάρκεια παρατήρησης Η παρατήρηση διαρκεί τουλάχιστον 15 δευτερόλεπτα.
12. ΒΑΡΟΥΛΚΑ ΔΟΜΙΚΩΝ ΚΑΤΑΣΚΕΥΩΝ
α) Εξοπλισμός με κινητήρα εσωτερικής καύσης Βλέπε αριθ. 0.
Το γεωμετρικό κέντρο του μηχανήματος τοποθετείται επάνω από το κέντρο του ημισφαιρίου και συνδέεται με το βαρούλκο, χωρίς όμως να ασκείται φορτίο.
β) Εξοπλισμός με ηλεκτροκινητήρα EN 14492-2:2019, παράρτημα M
13. ΜΗΧΑΝΗΜΑΤΑ ΜΕΤΑΦΟΡΑΣ ΚΑΙ ΕΚΤΟΞΕΥΣΗΣ ΣΚΥΡΟΔΕΜΑΤΟΣ ΚΑΙ ΚΟΝΙΑΜΑΤΟΣ
EN 12001: 2012, παράρτημα C
14. ΜΕΤΑΦΟΡΙΚΕΣ ΤΑΙΝΙΕΣ
Βλέπε αριθ. 0.
Το γεωμετρικό κέντρο του μηχανήματος τοποθετείται επάνω από το κέντρο του ημισφαιρίου. Η ταινία κινείται χωρίς φορτίο και εξέρχεται του ημισφαιρίου —αν χρειάζεται— από το σημείο 1.
15. ΕΓΚΑΤΑΣΤΑΣΕΙΣ ΨΥΞΗΣ ΕΠΙ ΟΧΗΜΑΤΩΝ
Δοκιμή με φορτίο
Ο ψυκτικός εξοπλισμός εγκαθίσταται σε πραγματικό ή προσομοιούμενο χώρο φόρτωσης και η ηχοστάθμη μετριέται σε σταθερή θέση όπου, σύμφωνα με τις οδηγίες που χορηγούνται στον αγοραστή, το ύψος του ψυκτικού εξοπλισμού είναι αντιπροσωπευτικό των απαιτήσεων της σκοπούμενης εγκατάστασης. Η πηγή ενέργειας του ψυκτικού εξοπλισμού θα λειτουργεί με ισχύ που επιτρέπει την επίτευξη της μέγιστης ταχύτητας του συμπιεστού ψύξης και του ανεμιστήρα που ορίζεται στις οδηγίες. Αν ο ψυκτικός εξοπλισμός προορίζεται να τροφοδοτείται από τον κινητήρα προώθησης του οχήματος, ο κινητήρας δεν θα χρησιμοποιείται κατά τη δοκιμή και ο ψυκτικός εξοπλισμός θα συνδέεται με κατάλληλη πηγή ηλεκτρικής ενέργειας. Οι αφαιρούμενες μονάδες έλξης πρέπει να απομακρύνονται κατά τη διάρκεια της μέτρησης. Η ηχοστάθμη του ψυκτικού εξοπλισμού που συνδέεται σε μονάδες ψύξης χώρου φορτίου και έχει τη δυνατότητα να τροφοδοτείται από διάφορες πηγές ενέργειας μετριέται χωριστά για κάθε πηγή. Τα αποτελέσματα των μετρήσεων που αναφέρονται στην έκθεση δοκιμής θα αντανακλούν τουλάχιστον τον τρόπο λειτουργίας που προκαλεί τη μέγιστη εκπομπή θορύβου. Διάρκεια παρατήρησης Η παρατήρηση διαρκεί τουλάχιστον 15 δευτερόλεπτα.
16. ΠΡΟΩΘΗΤΕΣ
ISO 6395:2008 με τις συνθήκες λειτουργίας και δοκιμής που ορίζονται στο παράρτημα C του εν λόγω προτύπου.
17. ΕΞΟΠΛΙΣΜΟΣ ΔΙΑΤΡΗΣΕΩΝ
α) Κινητός εξοπλισμός διατρήσεων EN 16228-2:2014+A1:2021, εδάφιο 5.12
β) Εξοπλισμός οριζόντιων κατευθυντικών διατρήσεων EN 16228-3:2014+A1:2021, εδάφιο 5.15
γ) Εναλλάξιμος βοηθητικός εξοπλισμός διατρήσεων EN 16228-7:2014+A1:2021, εδάφιο 5.3
δ) Οποιοσδήποτε άλλος εξοπλισμός διατρήσεων EN 16228-1:2014+A1:2021, εδάφιο 5.27.2.2
18. ΑΝΑΤΡΕΠΟΜΕΝΑ ΟΧΗΜΑΤΑ
ISO 6395:2008 με τις συνθήκες λειτουργίας και δοκιμής που ορίζονται στο παράρτημα F του εν λόγω προτύπου.
19. ΜΗΧΑΝΗΜΑΤΑ ΠΛΗΡΩΣΗΣ ΚΑΙ ΕΚΚΕΝΩΣΗΣ ΒΥΤΙΟΦΟΡΩΝ ή ΣΙΛΟΦΟΡΩΝ ΟΧΗΜΑΤΩΝ
Βλέπε αριθ. 9 για αεροσυμπιεστές ή αντλίες κενού. Βλέπε αριθ. 56 για αντλίες υγρών.
20. ΕΚΣΚΑΦΕΙΣ
ISO 6395:2008 με τις συνθήκες λειτουργίας και δοκιμής που ορίζονται στο παράρτημα B του εν λόγω προτύπου.
21. ΕΚΣΚΑΦΕΙΣ-ΦΟΡΤΩΤΕΣ ISO 6395:2008 με τις συνθήκες λειτουργίας και δοκιμής που ορίζονται στο παράρτημα E του εν λόγω προτύπου.
22. ΔΟΧΕΙΑ ΑΝΑΚΥΚΛΩΣΗΣ ΓΥΑΛΙΟΥ
Για τους σκοπούς της εν λόγω δοκιμής θορύβου, κατά τη μέτρηση της στάθμης ηχητικής πίεσης στις θέσεις των μικροφώνων χρησιμοποιείται η μεμονωμένη υποβληθείσα σε χρονική ολοκλήρωση στάθμη ηχητικής πίεσης LE, όπως ορίζεται στο EN ISO 3744:2010, σημείο 3.4. Περιβαλλοντική διόρθωση K2A Μέτρηση σε ανοικτό χώρο K2A = 0 Μετρήσεις σε κλειστό χώρο Η τιμή της σταθεράς Κ2Α, οριζόμενη σύμφωνα με το πρότυπο EN ISO 3744:2010, παράρτημα Α είναι ≤ 2,0 dB, οπότε, στην περίπτωση αυτή, η Κ2Α δεν λαμβάνεται υπόψη. Συνθήκες λειτουργίας κατά τη διάρκεια της δοκιμής Η μέτρηση του θορύβου εκτελείται κατά τη διάρκεια πλήρους κύκλου που αρχίζει με κενό δοχείο και ολοκληρώνεται μετά την απόρριψη 120 γυάλινων φιαλών σε αυτό. Οι γυάλινες φιάλες ορίζονται ως εξής: — χωρητικότητα: 75 cl· — βάρος: 370 ± 30 g. Ο εκτελών τη δοκιμή χειριστής κρατά κάθε γυάλινη φιάλη από τον λαιμό της και με το κάτω μέρος της προς το άνοιγμα πλήρωσης, την ωθεί απαλά διαμέσου του ανοίγματος πλήρωσης προς το κέντρο του δοχείου αποφεύγοντας κατά το δυνατόν η φιάλη να προσκρούσει στα τοιχώματα.
Για την απόρριψη των φιαλών χρησιμοποιείται μόνο ένα άνοιγμα. Πρόκειται για το άνοιγμα που βρίσκεται πλησιέστερα στη θέση 12 του μικροφώνου. Διάρκεια παρατήρησης/προσδιορισμός της προκύπτουσας στάθμης ακουστικής ισχύος όταν ισχύουν περισσότερες της μίας συνθήκες λειτουργίας Η μεμονωμένη, υποβληθείσα σε ολοκλήρωση στάθμη ηχητικής πίεσης με στάθμιση “Α” μετριέται ταυτόχρονα σε έξι θέσεις μικροφώνων για κάθε γυάλινη φιάλη που απορρίπτεται στο δοχείο. Ο μέσος όρος της μεμονωμένης, υποβληθείσας σε ολοκλήρωση στάθμης ακουστικής ισχύος επί της επιφάνειας μέτρησης υπολογίζεται σύμφωνα με το EN ISO 3744:2010, εδάφιο 8.2.2. Ο μέσος όρος της μεμονωμένης, υποβληθείσας σε ολοκλήρωση στάθμης ηχητικής ισχύος για τις 120 απορρίψεις γυάλινων φιαλών υπολογίζεται ως ο λογαριθμικός μέσος των μεμονωμένων, υποβληθεισών σε ολοκλήρωση μέσων όρων των σταθμών ηχητικής πίεσης με στάθμιση “Α” επί της επιφάνειας μέτρησης.
23. ΙΣΟΠΕΔΩΤΕΣ
ISO 6395:2008 με τις συνθήκες λειτουργίας και δοκιμής που ορίζονται στο παράρτημα G του εν λόγω προτύπου.
24. ΜΗΧΑΝΕΣ ΞΑΚΡΙΣΜΑΤΟΣ ΧΟΡΤΩΝ/ΜΗΧΑΝΕΣ ΞΑΚΡΙΣΜΑΤΟΣ ΠΑΡΥΦΩΝ
Βλέπε αριθ. 2. σε ολοκλήρωση μέσων όρων των σταθμών ηχητικής πίεσης με στάθμιση “Α” επί της επιφάνειας μέτρησης.
23. ΙΣΟΠΕΔΩΤΕΣ
ISO 6395:2008 με τις συνθήκες λειτουργίας και δοκιμής που ορίζονται στο παράρτημα G του εν λόγω προτύπου.
24. ΜΗΧΑΝΕΣ ΞΑΚΡΙΣΜΑΤΟΣ ΧΟΡΤΩΝ/ΜΗΧΑΝΕΣ ΞΑΚΡΙΣΜΑΤΟΣ ΠΑΡΥΦΩΝ
Βλέπε αριθ. 2.
25. ΨΑΛΙΔΕΣ ΦΥΤΙΚΩΝ ΦΡΑΚΤΩΝ
α) Εξοπλισμός με κινητήρα εσωτερικής καύσης EN ISO 22868:2021
β) Εξοπλισμός με ηλεκτροκινητήρα EN IEC 62841-4-2:2019, παράρτημα I, εδάφιο I.2
26. ΟΧΗΜΑΤΑ ΓΙΑ ΕΚΠΛΥΣΗ ΥΠΟ ΥΨΗΛΗ ΠΙΕΣΗ
Δοκιμή με φορτίο
Το όχημα για έκπλυση υπό υψηλή πίεση υπόκειται σε δοκιμή ακίνητο. Ο κινητήρας και οι βοηθητικοί μηχανισμοί λειτουργούν στις στροφές που προβλέπει ο κατασκευαστής για τη λειτουργία του εξοπλισμού εργασίας. Οι αντλίες υψηλής πίεσης λειτουργούν στον μέγιστο αριθμό στροφών και τη μέγιστη πίεση λειτουργίας που ορίζει ο κατασκευαστής. Χρησιμοποιείται προσαρμοσμένο ακροφύσιο, ώστε η βαλβίδα περιορισμού της πίεσης να ευρίσκεται ακριβώς κάτω από το όριο ενεργοποίησής της. Ο θόρυβος της ροής του ακροφυσίου δεν πρέπει να επηρεάζει καθόλου τα αποτελέσματα των μετρήσεων. Διάρκεια παρατήρησης Η παρατήρηση διαρκεί τουλάχιστον 30 δευτερόλεπτα.
27. ΜΗΧΑΝΗΜΑΤΑ ΕΚΤΟΞΕΥΣΗΣ ΠΙΔΑΚΑ ΥΔΑΤΟΣ ΥΨΗΛΗΣ ΠΙΕΣΗΣ
α) Εξοπλισμός με ονομαστική πίεση ≤ 35 MPa EN 60335-2-79:2012, παράρτημα CC
β) Εξοπλισμός με ονομαστική πίεση > 35 MPa EN 1829-1:2010, εδάφιο 6.8
28. ΥΔΡΑΥΛΙΚΕΣ ΣΦΥΡΕΣ
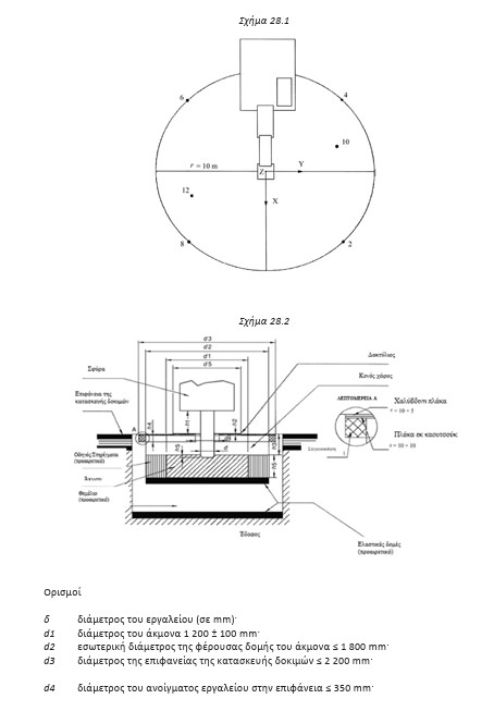
Επιφάνεια μέτρησης/αριθμός θέσεων μικροφώνων/απόσταση μέτρησης Ημισφαίριο/έξι θέσεις μικροφώνου σύμφωνα με το EN ISO 3744:2010, παράρτημα F /r = 10 m. Συναρμολόγηση του εξοπλισμού Για τη δοκιμή, η σφύρα προσαρτάται σε φορέα και χρησιμοποιείται ειδική δομή κύβου δοκιμών. Το σχήμα 28.1 δίνει τα χαρακτηριστικά της δομής αυτής και το σχήμα 28.2 δείχνει τη θέση του φορέα.
Φορέας
Ο φορέας για τη σφύρα δοκιμής θα πρέπει να ανταποκρίνεται στις απαιτήσεις των τεχνικών προδιαγραφών της σφύρας δοκιμής, ειδικά όσον αφορά το πεδίο διακύμανσης του βάρους, την υδραυλική ισχύ εξόδου, την παροχή της ροής του ελαίου και την αντίθλιψη της σωληνώσεως επιστροφής. Συναρμολόγηση Η μηχανική συναρμολόγηση καθώς και οι συνδέσεις (εύκαμπτοι και άκαμπτοι σωλήνες κ.λπ.) θα πρέπει να ανταποκρίνονται στις προδιαγραφές που δίδονται στα τεχνικά στοιχεία της σφύρας. Όλος ο σημαντικός θόρυβος που δημιουργείται από τις σωληνώσεις και τα διάφορα μηχανικά εξαρτήματα που απαιτούνται για την εγκατάσταση θα πρέπει να εκμηδενισθεί. Όλες οι συνδέσεις των εξαρτημάτων πρέπει να είναι καλά σφιγμένες. Σταθερότητα της σφύρας και δύναμη στατικής συγκράτησης Η σφύρα θα πρέπει να συγκρατείται σταθερά από τον φορέα ώστε να προσδίδει σταθερότητα ίση με εκείνη που υφίσταται υπό κανονικές συνθήκες. Η σφύρα πρέπει να λειτουργεί σε όρθια θέση. Εργαλείο Για τις μετρήσεις χρησιμοποιείται αμβλύ εργαλείο. Το μήκος του εργαλείου πρέπει να ανταποκρίνεται στις απαιτήσεις που δίδονται στο σχήμα 28.1 (κύβος δοκιμών). Δοκιμή με φορτίο Ισχύς υδραυλικής παροχής και ροή του ελαίου Οι συνθήκες λειτουργίας της υδραυλικής σφύρας πρέπει να ρυθμίζονται κατάλληλα, να μετριούνται και να καταχωρούνται στην έκθεση μαζί με τις αντίστοιχες τιμές των τεχνικών προδιαγραφών. Η υπό δοκιμή σφύρα θα πρέπει να χρησιμοποιείται ώστε να επιτυγχάνεται το 90 % ή περισσότερο της μέγιστης ισχύος υδραυλικής παροχής και ροής ελαίου της σφύρας. Πρέπει να λαμβάνεται μέριμνα ώστε η ολική αβεβαιότητα των σειρών μετρήσεων των τιμών ps και Q να διατηρούνται εντός περιθωρίου ± 5 %, ώστε εξασφαλίζεται ο ορισμός της ισχύος της υδραυλικής παροχής με ακρίβεια ± 10 %. Λαμβάνοντας υπόψη τον γραμμικό συσχετισμό μεταξύ ισχύος υδραυλικής παροχής και εκπεμπόμενης ηχητικής έντασης, αυτό σημαίνει μεταβολή λιγότερο από ± 0,4 dB στον καθορισμό της στάθμης ακουστικής ισχύος. Ρυθμιζόμενα εξαρτήματα που έχουν επιπτώσεις στην ισχύ της σφύρας Οι αρχικές ρυθμίσεις των κεντρικών βαλβίδων όλων των συσσωρευτών πιέσεως και άλλων ενδεχόμενων ρυθμιζόμενων εξαρτημάτων πρέπει να ανταποκρίνονται στις τιμές που δίδονται στα τεχνικά στοιχεία. Αν είναι δυνατόν να επιλεγούν περισσότεροι από έναν ρυθμοί κρούσεως, οι μετρήσεις πρέπει να γίνονται χρησιμοποιώντας όλες τις ρυθμίσεις. Παρουσιάζονται οι ελάχιστες και οι μέγιστες τιμές. Ποσότητες προς μέτρηση ps , η μέση τιμή της πίεσης της παροχής υδραυλικού ελαίου κατά τη διάρκεια της λειτουργίας της σφύρας όπου περιλαμβάνονται τουλάχιστον 10 κρούσεις. Q, η μέση τιμή του εισερχομένου ελαίου του θραυστήρα μετρούμενου ταυτόχρονα με το ps.T, η θερμοκρασία του ελαίου πρέπει να κυμαίνεται μεταξύ +40 °C/+60 °C κατά τη διάρκεια των δοκιμών. Η θερμοκρασία του σώματος του υδραυλικού θραυστήρα πρέπει να σταθεροποιηθεί στην κανονική θερμοκρασία λειτουργίας πριν από την έναρξη των μετρήσεων. Pa, η πίεση του προγεμισμένου αερίου όλων των συσσωρευτών πρέπει να μετριέται σε στατική κατάσταση (ο θραυστήρας δεν λειτουργεί) με σταθερή θερμοκρασία περιβάλλοντος από +15 °C/ + 25 °C. Η μετρούμενη θερμοκρασία περιβάλλοντος θα πρέπει να καταγράφεται μαζί με τη μετρούμενη πίεση του προγεμιζομένου αερίου του συσσωρευτή. Οι παράμετροι που πρέπει να εκτιμηθούν με βάση τις μετρούμενες παραμέτρους λειτουργίας Ισχύς υδραυλικής παροχής του θραυστήρα PIN = ps * Q Μέτρηση της πίεσης της σωληνώσεως υδραυλικής παροχής ps:
— η ps πρέπει να μετριέται όσο το δυνατόν πλησιέστερα προς την είσοδο του θραυστήρα·
— η ps πρέπει να μετριέται με μανόμετρο (ελάχιστη διάμετρος 100 mm· κατηγορία ακριβείας ± 1,0 % FSO). Ροή εισαγωγής ελαίου του θραυστήρα Q:
— η Q πρέπει να μετριέται από τη γραμμή παροχής της πίεσης όσο το δυνατόν πλησιέστερα προς το σημείο εισαγωγής του θραυστήρα·
— η Q πρέπει να μετριέται με ηλεκτρικό ροόμετρο (κατηγορία ακριβείας ± 2,5 % της ένδειξης της ροής).
Σημείο μέτρησης της θερμοκρασίας του ελαίου Τ:
— το Τ πρέπει να μετριέται από τη δεξαμενή ελαίου του φορέα ή από την υδραυλική σωλήνωση που συνδέεται με τη σφύρα. Στην έκθεση πρέπει να σημειώνεται το σημείο μέτρησης·
— η ακρίβεια της ένδειξης της θερμοκρασίας πρέπει να κυμαίνεται μεταξύ ± 2 °C της πραγματικής τιμής. Διάρκεια παρατήρησης/προσδιορισμός της προκύπτουσας στάθμης ακουστικής ισχύος Η παρατήρηση διαρκεί τουλάχιστον 15 δευτερόλεπτα. Οι μετρήσεις επαναλαμβάνονται τρεις φορές ή περισσότερο, εφόσον χρειάζεται. Το τελικό αποτέλεσμα μετράται ως ο αριθμητικός μέσος όρος των δύο υψηλοτέρων τιμών που δεν διαφέρουν περισσότερο από 1 dB.

d5 διάμετρος του δακτυλίου στεγανοποίησης του εργαλείου ≤ 1 000 mm·
h1 oρατό μήκος του εργαλείου μεταξύ του κατώτερου σημείου του καλύμματος και της άνω επιφανείας του δακτυλίου στεγανοποίησης του εργαλείου (σε mm), h1 = d ± d/2·
h2 πάχος του δακτυλίου στεγανοποίησης του εργαλείου πάνω από την επιφάνεια ≤ 20 mm (αν ο δακτύλιος στεγανοποίησης του εργαλείου βρίσκεται κάτω από την επιφάνεια, το πάχος του δεν περιορίζεται και μπορεί να κατασκευάζεται από αφρώδες ελαστικό)·
h3απόσταση μεταξύ της άνω επιφανείας της δομής και της άνω επιφανείας του άκμονα 250 ± 50 mm·
h4 πάχος του δακτυλίου στεγανοποίησης της επιφανείας από αφρώδες ελαστικό
h5 ≤ 30 mm· πάχος του άκμονα 350 ± 50 mm·
h6 εισχώρηση του εργαλείου ≤ 50 mm.
Αν χρησιμοποιείται η τετραγωνική μορφή της δομής του κύβου δοκιμών, το ελάχιστο μήκος ισούται με 0,89 επί την αντίστοιχη διάμετρο.
Ο κενός χώρος μεταξύ της επιφάνειας και του άκμονα μπορεί να γεμίζεται με αφρώδες ελαστικό ή άλλο απορροφητικό υλικό πυκνότητας < 220 kg/m3.
29. ΣΥΓΚΡΟΤΗΜΑΤΑ ΥΔΡΑΥΛΙΚΗΣ ΙΣΧΥΟΣ
Τοποθέτηση του μηχανήματος
Το συγκρότημα υδραυλικής ισχύος τοποθετείται επάνω στο ανακλαστικό επίπεδο. Συγκροτήματα υδραυλικής ισχύος που φέρουν πέλματα ολίσθησης τοποθετούνται επάνω σε στήριγμα ύψους 0,40 m, εκτός αν υπάρχει διαφορετική απαίτηση σύμφωνα με τους όρους εγκατάστασης του κατασκευαστή.
Δοκιμή με φορτίο
Κατά τη διάρκεια της δοκιμής, κανένα εργαλείο δεν θα συνδέεται με το συγκρότημα υδραυλικής ισχύος.
Το συγκρότημα υδραυλικής ισχύος οδηγείται στις σταθερές συνθήκες λειτουργίας του εντός της κλίμακας τιμών που ορίζει ο κατασκευαστής. Πρέπει να λειτουργεί στον ονομαστικό αριθμό στροφών και την ονομαστική πίεση. Ονομαστικός αριθμός στροφών και ονομαστική πίεση είναι τα αντίστοιχα στοιχεία που αναφέρονται στις οδηγίες χρήσης που χορηγούνται στον αγοραστή.
Διάρκεια παρατήρησης
Η παρατήρηση διαρκεί τουλάχιστον 15 δευτερόλεπτα.
30. ΚΟΠΤΙΚΑ ΑΡΜΩΝ (ΑΡΜΟΚΟΦΤΕΣ)
α) Μηχανές κοπής δαπέδου πεζού χειριστή
EN 13862:2021, εδάφιο 4.10.2
β) Φορητός, χειροκατευθυνόμενος εξοπλισμός με κινητήρα εσωτερικής καύσης, συναρμολογημένος σε κινητή βάση, που προορίζεται να χρησιμοποιηθεί ως πριόνι δαπέδου EN ISO 19432-1:2020, εδάφιο 4.19.2
γ) Άλλα κοπτικά αρμών Δοκιμή με φορτίο
Το κοπτικό αρμών εφοδιάζεται με τη μεγαλύτερη δυνατή λεπίδα που ορίζει ο κατασκευαστής στις οδηγίες χρήσης που χορηγεί στον αγοραστή. Ο κινητήρας λειτουργεί στον μέγιστο αριθμό στροφών, ενώ η λεπίδα είναι ακίνητη. Διάρκεια παρατήρησης Η παρατήρηση διαρκεί τουλάχιστον 15 δευτερόλεπτα.
31. ΣΥΜΠΥΚΝΩΤΕΣ ΓΙΑ ΧΩΡΟΥΣ ΥΓΕΙΟΝΟΜΙΚΗΣ ΤΑΦΗΣ
ISO 6395:2008 με τις συνθήκες λειτουργίας και δοκιμής που ορίζονται στο παράρτημα H του εν λόγω προτύπου.
32. ΧΛΟΟΚΟΠΤΙΚΕΣ ΜΗΧΑΝΕΣ
α) Περιστροφικές και κυλινδρικές χλοοκοπτικές μηχανές με κινητήρα εσωτερικής καύσης
EN ISO 5395-1:2013, EN ISO 5395-1:2013/A1:2018, εδάφιο 4.3, δεύτερη περίπτωση.
Περιβαλλοντική διόρθωση K2A
Αν K2A ≤ 0,5 dB, μπορεί να αγνοηθεί.
β) Περιστροφικές και κυλινδρικές χλοοκοπτικές μηχανές με ηλεκτροκινητήρα, με χειριστή που στέκεται ή επιβαίνει σε αυτές ή είναι πεζός EN IEC 62841-4-3:2021, EN IEC 62841-4-3:2021/A11:2021, παράρτημα I, εδάφιο I.2
33. ΜΗΧΑΝΕΣ ΞΑΚΡΙΣΜΑΤΟΣ ΧΛΟΟΤΑΠΗΤΑ/ΞΑΚΡΙΣΜΑΤΟΣ ΠΑΡΥΦΩΝ ΧΛΟΟΤΑΠΗΤΑ
EN 50636-2-91:2014, παράρτημα CC
34. ΦΥΣΗΤΗΡΕΣ ΦΥΛΛΩΝ
α) Εξοπλισμός με κινητήρα εσωτερικής καύσης EN ISO 22868:2021
β) Εξοπλισμός με ηλεκτροκινητήρα EN 50636-2-100:2014, παράρτημα CC
35. ΣΥΛΛΕΚΤΗΡΕΣ ΦΥΛΛΩΝ
Βλέπε αριθ. 34
36. ΑΝΥΨΩΤΙΚΑ ΟΧΗΜΑΤΑ
EN 12053:2001+A1:2008
37. ΦΟΡΤΩΤΕΣ
ISO 6395:2008 με τις συνθήκες λειτουργίας και δοκιμής που ορίζονται στο παράρτημα D του εν λόγω προτύπου.
38. ΚΙΝΗΤΟΙ ΓΕΡΑΝΟΙ
EN 13000:2010+A1:2014, εδάφιο 5.3
39. ΚΙΝΗΤΟΙ ΠΕΡΙΕΚΤΕΣ ΑΠΟΒΛΗΤΩΝ
Πεδίο δοκιμής
— Ανακλαστική επιφάνεια σκυροδέματος ή μη πορώδους ασφάλτου
— Αίθουσα εργαστηρίου που προσφέρει ελεύθερο πεδίο πάνω από ανακλαστικό επίπεδο
Περιβαλλοντική διόρθωση K2A
Μέτρηση σε ανοικτό χώρο:
K2A = 0
Μέτρηση σε κλειστό χώρο:
Η τιμή της σταθεράς Κ2Α, οριζόμενη σύμφωνα με το EN ISO 3744:2010 παράρτημα Α, πρέπει να είναι ≤ 2,0 dB, οπότε, στην περίπτωση αυτή, η Κ2Α δεν λαμβάνεται υπόψη. 6
Επιφάνεια μέτρησης/αριθμός θέσεων μικροφώνων/απόσταση μέτρησης Ημισφαίριο/έξι θέσεις μικροφώνου σύμφωνα με το EN ISO 3744:2010, παράρτημα F/r = 3 m.
Συνθήκες λειτουργίας κατά τη διάρκεια της δοκιμής
Όλες οι μετρήσεις εκτελούνται με κενό περιέκτη.
Δοκιμή αριθ. 1: Ελεύθερο κλείσιμο του σκεπάσματος κατά μήκος του σώματος του περιέκτη
Για την ελαχιστοποίηση της επιρροής του χειριστή στις μετρήσεις, ο χειριστής πρέπει να στέκεται στην πίσω πλευρά του περιέκτη (πλευρά της άρθρωσης). Το σκέπασμα πρέπει να αφήνεται από το μέσον του για να προλαμβάνεται στρέβλωσή του κατά την πτώση.
Η μέτρηση εκτελείται κατά τον ακόλουθο κύκλο και επαναλαμβάνεται 20 φορές:
— αρχικά, το σκέπασμα υψώνεται στην κατακόρυφο·
— αφήνεται προς τα εμπρός, αν είναι δυνατόν χωρίς να του δίνεται ώθηση, ενώ ο χειριστής βρίσκεται στην πίσω πλευρά του περιέκτη, ακίνητος μέχρι να κλείσει το σκέπασμα·
— μετά το πλήρες κλείσιμο, το σκέπασμα σηκώνεται στην αρχική του θέση.
Σημείωση: Αν χρειάζεται, ο χειριστής μπορεί προσωρινά να μετακινηθεί για να σηκώσει το σκέπασμα.
Δοκιμή αριθ. 2: Πλήρες άνοιγμα του σκεπάσματος
Για την ελαχιστοποίηση της επιρροής του χειριστή στις μετρήσεις, ο χειριστής πρέπει να στέκεται στην πίσω πλευρά του περιέκτη (πλευρά της άρθρωσης) όσον αφορά τους τετράτροχους περιέκτες και πλάι στον περιέκτη (μεταξύ της θέσης του μικροφώνου 10 και του μικροφώνου 12) προκειμένου για τους δίτροχους περιέκτες. Το σκέπασμα πρέπει να αφήνεται από το μέσον του ή όσο το δυνατόν πλησιέστερα σε αυτό.
Για να προληφθεί οποιαδήποτε κίνηση του περιέκτη, οι τροχοί πρέπει να ακινητοποιούνται κατά τη διάρκεια της δοκιμής. Προκειμένου για τους δίτροχους περιέκτες και για την πρόληψη οποιασδήποτε αναπήδησης του περιέκτη, ο χειριστής μπορεί να τον κρατάει ακουμπώντας το χέρι του στο επάνω χείλος.
Η μέτρηση γίνεται σύμφωνα με τον ακόλουθο κύκλο:
— αρχικά, το σκέπασμα ανοίγεται μέχρι την οριζόντιο·
— αφήνεται χωρίς να του δοθεί ώθηση·
— μετά πλήρες άνοιγμα και πριν από ενδεχόμενη αναπήδηση, το σκέπασμα ανυψώνεται στην αρχική του θέση.
Δοκιμή αριθ. 3: Κύλιση του περιέκτη σε τεχνητό ακανόνιστο οδόστρωμα
Για την εν λόγω δοκιμή, χρησιμοποιείται τεχνητός στίβος δοκιμών, ο οποίος απομιμείται ακανόνιστο έδαφος. Ο εν λόγω στίβος δοκιμών αποτελείται από δύο παράλληλες λωρίδες χαλύβδινου πλέγματος (μήκους 6 m και πλάτους 400 mm), που στερεώνονται στο αντανακλαστικό επίπεδο περίπου κάθε 20 cm. Η απόσταση μεταξύ των δύο λωρίδων προσαρμόζεται στον τύπο του περιέκτη, κατά τρόπο ώστε οι τροχοί να μπορούν να κυλούν σε όλο το μήκος του στίβου. Οι συνθήκες προσαρμογής πρέπει να εξασφαλίζουν επίπεδη επιφάνεια. Εάν απαιτείται, ο στίβος στερεώνεται στο έδαφος με ελαστικά υλικά προς αποφυγή εκπομπών παρασιτικών θορύβων.
Σημείωση: Κάθε λωρίδα μπορεί να αποτελείται από πολλά στοιχεία πλάτους 400 mm που προσαρμόζονται μεταξύ τους.
Παράδειγμα κατάλληλου στίβου δίδεται στα σχήματα 39.1 και 39.2. Ο χειριστής βρίσκεται στην πλευρά του περιέκτη απέναντι από το μετωπικό σύστημα υποδοχής (πλευρά της άρθρωσης).
Η μέτρηση εκτελείται ενώ ο χειριστής τραβά τον περιέκτη κατά μήκος του τεχνητού στίβου με σταθερή ταχύτητα περίπου 1 m/s μεταξύ των σημείων Α και Β (απόσταση 4,24 m — βλέπε το σχήμα 39.3) ωσότου ο άξονας των τροχών, προκειμένου για δίτροχο περιέκτη, ή ο πρώτος άξονας των τροχών, προκειμένου για τετράτροχο περιέκτη, φθάσει στο σημείο Α ή το σημείο Β. Η διαδικασία αυτή επαναλαμβάνεται τρεις φορές προς κάθε κατεύθυνση.
Κατά τη διάρκεια της δοκιμής, όσον αφορά τους δίτροχους περιέκτες, η γωνία μεταξύ του περιέκτη και του στίβου πρέπει να είναι 45°. Όσον αφορά τους τετράτροχους περιέκτες ο χειριστής δοκιμών πρέπει να εξασφαλίζει κατάλληλη επαφή όλων των τροχών με τον στίβο.
Περίοδοι παρατήρησης/προσδιορισμός της προκύπτουσας στάθμης ακουστικής ισχύος όταν ισχύουν περισσότερες της μιας συνθήκες λειτουργίας
Δοκιμές αριθ. 1 και 2: Ελεύθερο κλείσιμο του σκεπάσματος κατά μήκος του σώματος του περιέκτη και πλήρες άνοιγμα του σκεπάσματος
Εφόσον είναι δυνατόν, οι μετρήσεις διεξάγονται ταυτόχρονα και στις έξι θέσεις των μικροφώνων. Σε αντίθετη περίπτωση, οι ηχοστάθμες που μετριούνται σε κάθε θέση των μικροφώνων κατατάσσονται κατ’ αύξουσα τάξη και οι στάθμες ακουστικής ισχύος υπολογίζονται συνδυάζοντας τις τιμές για κάθε θέση των μικροφώνων ανάλογα με τη σειρά τους.
Η μεμονωμένη στάθμη ηχητικής πίεσης με στάθμιση “Α” μετριέται για καθένα από τα 20 κλεισίματα και 20 ανοίγματα του σκεπάσματος σε κάθε σημείο μέτρησης. Οι στάθμες ακουστικής ισχύος LWAshutting και LWAopening υπολογίζονται από τον τετραγωνικό μέσο όρο των πέντε υψηλότερων τιμών που επιλέγονται μεταξύ των αποτελεσμάτων των μετρήσεων.
Δοκιμή αριθ. 3: Κύλιση του περιέκτη σε τεχνητό ακανόνιστο οδόστρωμα
Η διάρκεια παρατήρησης Τ είναι ίση με το χρόνο που απαιτείται για να καλυφθεί η απόσταση μεταξύ των σημείων Α και Β του στίβου δοκιμών.
Η στάθμη ακουστικής ισχύος LWArolling είναι ίση προς το μέσο όρο έξι τιμών που διαφέρουν κατά λιγότερο από 2 dB. Αν το κριτήριο αυτό δεν καλύπτεται με έξι μετρήσεις, ο κύκλος επαναλαμβάνεται όσες φορές χρειαστεί.
Η προκύπτουσα στάθμη ακουστικής ισχύος υπολογίζεται ως εξής:
![]()


40. ΜΟΤΟΣΚΑΠΤΙΚΕΣ ΦΡΕΖΕΣ
Βλέπε αριθ. 32 Κατά τη διάρκεια της μέτρησης το εργαλείο αποσυνδέεται.
41. ΔΙΑΣΤΡΩΤΗΡΕΣ ΟΔΟΠΟΙΙΑΣ
EN 500-6:2006+A1:2008, εδάφιο 5.17
42. ΕΞΟΠΛΙΣΜΟΣ ΠΑΣΣΑΛΟΠΗΞΗΣ
α)Εξοπλισμός θεμελίωσης EN 16228-4:2014+A1:2021, εδάφιο 5.8
β)Εναλλάξιμος βοηθητικός εξοπλισμός πασσαλόπηξης EN 16228-7:2014+A1:2021, εδάφιο 5.3
γ)Οποιοσδήποτε άλλος εξοπλισμός πασσαλόπηξης EN 16228-1:2014+A1:2021, εδάφιο 5.27.2.2
43. ΜΗΧΑΝΗΜΑΤΑ ΤΟΠΟΘΕΤΗΣΗΣ ΣΩΛΗΝΩΝ
ISO 6393:2008
44. ΕΡΠΥΣΤΡΙΟΦΟΡΑ ΟΧΗΜΑΤΑ ΔΙΑΜΟΡΦΩΣΗΣ ΠΙΣΤΑΣ ΧΙΟΝΙΟΥ
ISO 6393:2008, με τις ίδιες διαδικασίες και συνθήκες λειτουργίας που περιγράφονται για τους ερπυστριοφόρους προωθητές. Η επιφάνεια του χώρου δοκιμών είναι σκληρό ηχοανακλαστικό επίπεδο (5.3.2 στο ISO 6393:2008).
45. ΗΛΕΚΤΡΟΠΑΡΑΓΩΓΙΚΑ ΖΕΥΓΗ ΙΣΧΥΟΣ
EN ISO 8528-10:2022
Εφαρμόζεται η μέθοδος μέτρησης αυτού του προτύπου που βασίζεται στο πρότυπο EN ISO 3744:2010.
46. ΜΗΧΑΝΟΚΙΝΗΤΑ ΣΑΡΩΘΡΑ
α) Σάρωθρα οδικού καθαρισμού EN 17106-2:2021, εδάφιο 4.3
β)Άλλα μηχανοκίνητα σάρωθρα για εξωτερική χρήση EN 60335-2-72:2012, παράρτημα DD
47. ΑΠΟΡΡΙΜΜΑΤΟΦΟΡΑ ΟΧΗΜΑΤΑ EN 1501-4:2023
48. ΦΡΕΖΕΣ ΟΔΟΣΤΡΩΜΑΤΩΝ
EN 500-2:2006+A1:2008, εδάφιο 5.17
49. ΕΚΧΕΡΣΩΤΕΣ
α) Εξοπλισμός με κινητήρα εσωτερικής καύσης EN 13684:2018, εδάφιο 5.16.2
β) Εξοπλισμός με ηλεκτροκινητήρα EN IEC 62841-4-7:2022, EN IEC 62841-4-7:2022/A11:2022, παράρτημα I, εδάφιο I.2
50. ΘΡΥΜΜΑΤΙΣΤΕΣ/ΤΕΜΑΧΙΣΤΕΣ ΟΡΓΑΝΙΚΩΝ ΥΛΙΚΩΝ
α) Θρυμματιστές/τεμαχιστές κήπου που τροφοδοτούνται με το χέρι Εξοπλισμός με κινητήρα εσωτερικής καύσης EN 13683:2003+A2:2011, εδάφιο 5.10.2 EN 13683:2003+A2:2011/AC:2013 Εξοπλισμός με ηλεκτροκινητήρα EN 50434:2014, εδάφιο 20.107.2
β) Δασοκομικοί τεμαχιστές ξύλου που τροφοδοτούνται οριζόντια με το χέρι EN 13525:2020, εδάφιο 5.5
γ) Δασοκομικοί τεμαχιστές ξύλου που τροφοδοτούνται κάθετα με το χέρι, δασοκομικοί τεμαχιστές ξύλου που τροφοδοτούνται μηχανικά (κάθετα και οριζόντια) και άλλοι θρυμματιστές/τεμαχιστές
Δοκιμή με φορτίο Η δοκιμή θρυμματιστή/τεμαχιστή οργανικών υλικών διενεργείται ενώ το μηχάνημα τεμαχίζει ένα ή περισσότερα ξύλα. Ο κύκλος εργασίας συνίσταται σε τεμαχισμό ενός στρογγυλού ξύλου (ξηρό πεύκο ή κοντραπλακέ) μήκους τουλάχιστον 1,5 m, αιχμηρού στο ένα άκρο και με διάμετρο περίπου ίση προς τη μέγιστη διάσταση που ο θρυμματιστής/τεμαχιστής έχει σχεδιαστεί να δέχεται και η οποία ορίζεται στις οδηγίες που χορηγούνται στον αγοραστή. Διάρκεια παρατήρησης/προσδιορισμός της προκύπτουσας στάθμης ακουστικής ισχύος Η παρατήρηση τερματίζεται όταν δεν υπάρχει πλέον υλικό στον χώρο τεμαχισμού, δεν πρέπει όμως να υπερβαίνει τα 20 δευτερόλεπτα. Αν είναι δυνατές αμφότερες οι συνθήκες λειτουργίας, πρέπει να διατηρείται η υψηλότερη στάθμη ακουστικής ισχύος.
51. ΕΚΧΙΟΝΙΣΤΙΚΑ ΜΗΧΑΝΗΜΑΤΑ ΜΕ ΠΕΡΙΣΤΡΕΦΟΜΕΝΑ ΕΡΓΑΛΕΙΑ
α) Εκχιονιστικά μηχανήματα οδικού καθαρισμού EN 17106-3-1:2021, εδάφιο 4.2
β) Εκτοξευτές χιονιού με χειριστή που επιβαίνει σε αυτούς ή είναι πεζός Εξοπλισμός με κινητήρα εσωτερικής καύσης EN ISO 8437-4:2021, παράρτημα A Εξοπλισμός με ηλεκτροκινητήρα: Το μηχάνημα λειτουργεί στον μέγιστο αριθμό στροφών χωρίς φορτίο επί 10 λεπτά πριν από την έναρξη της δοκιμής. Οι διατάξεις συλλογής ή εξώθησης λιπαίνονται σύμφωνα με τις οδηγίες του κατασκευαστή. Κατά τη διάρκεια της δοκιμής, η διάταξη συλλογής ή εξώθησης μανδαλώνεται και παραμένει άφορτη. Η δοκιμή εκτελείται σε ακινησία στον μέγιστο αριθμό στροφών χωρίς φορτίο. Η μέτρηση για τα εν λόγω μηχανήματα εκτελείται με την τοποθέτησή τους στην επιφάνεια κατά τρόπο ώστε η προβολή του γεωμετρικού κέντρου των κύριων εξαρτημάτων τους (εξαιρουμένης της λαβής κ.λπ.) να συμπίπτει με την αρχή του συστήματος συντεταγμένων των θέσεων των μικροφώνων. Αν χρησιμοποιείται τεχνητή επιφάνεια, το μηχάνημα τοποθετείται έτσι ώστε το γεωμετρικό κέντρο της να συμπίπτει επίσης με την αρχή του συστήματος συντεταγμένων των θέσεων των μικροφώνων. Ο διαμήκης άξονας του μηχανήματος είναι παράλληλος με τον άξονα x. Όλες οι μετρήσεις εκτελούνται χωρίς χειριστή. Κατά τη διάρκεια των μετρήσεων, το μηχάνημα λειτουργεί υπό σταθερές συνθήκες. Μόλις σταθεροποιηθεί η εκπομπή θορύβου, το χρονικό διάστημα μέτρησης είναι τουλάχιστον 15 δευτερόλεπτα. Αν οι μετρήσεις πραγματοποιούνται σε ζώνες συχνοτήτων οκτάβας ή ενός τρίτου οκτάβας, το ελάχιστο χρονικό διάστημα παρατήρησης είναι 30 δευτερόλεπτα για τις ζώνες συχνοτήτων των οποίων το κέντρο βρίσκεται ακριβώς στα 160 Hz ή κάτω από το επίπεδο αυτό και 15 δευτερόλεπτα για τις ζώνες συχνοτήτων των οποίων το κέντρο βρίσκεται ακριβώς στα 200 Hz ή πάνω από το επίπεδο αυτό.
52. ΟΧΗΜΑΤΑ ΜΕ ΑΝΑΡΡΟΦΗΤΗΡΑ
Δοκιμή με φορτίο
Η δοκιμή του οχήματος με αναρροφητήρα διενεργείται σε ακινησία. Ο κινητήρας και οι βοηθητικοί μηχανισμοί λειτουργούν στις στροφές που προβλέπει ο κατασκευαστής για τη λειτουργία του εξοπλισμού εργασίας. Η/οι αντλία/-ες κενού λειτουργεί/-ούν στις μέγιστες στροφές της/τους που προβλέπει ο κατασκευαστής. Ο αναρροφητήρας λειτουργεί κατά τρόπο ώστε η εσωτερική πίεση να ισούται με την ατμοσφαιρική πίεση (“0 % υποπίεση”). Ο θόρυβος ροής από το ακροφύσιο αναρρόφησης δεν πρέπει να επηρεάζει τα αποτελέσματα των μετρήσεων. Διάρκεια παρατήρησης Η παρατήρηση διαρκεί τουλάχιστον 15 δευτερόλεπτα.
53. ΠΥΡΓΟΓΕΡΑΝΟΙ
EN 14439:2006+A2:2009, εδάφιο 6.4.1
54. ΕΚΣΚΑΦΕΙΣ ΧΑΝΔΑΚΩΝ
ISO 6393:2008
55. ΑΥΤΟΚΙΝΟΥΜΕΝΟΙ ΑΝΑΜΕΙΚΤΗΡΕΣ
EN 12609:2021, παράρτημα B6
56. ΣΥΓΚΡΟΤΗΜΑΤΑ ΥΔΡΑΝΤΛΙΩΝ
EN ISO 20361:2019, EN ISO 20361:2019/A11:2020
Εφαρμόζεται η μέθοδος μέτρησης αυτού του προτύπου που βασίζεται στο πρότυπο EN ISO 3744:2010.
Η παρατήρηση διαρκεί τουλάχιστον 15 δευτερόλεπτα. 5
7. ΗΛΕΚΤΡΟΠΑΡΑΓΩΓΑ ΖΕΥΓΗ ΣΥΓΚΟΛΛΗΣΗΣ
EN ISO 8528-10:2022
Εφαρμόζεται η μέθοδος μέτρησης αυτού του προτύπου που βασίζεται στο πρότυπο EN ISO 3744:2010.»
Οι παρ. 4 και 5 του άρθρου 6 καταργούνται, και το άρθρο διαμορφώνεται πλέον ως εξής:
«Άρθρο 6 Δήλωση ΕΚ συμμόρφωσης.
1. Ο κατασκευαστής εξοπλισμού, ή ο εξουσιοδοτημένος εκπρόσωπός του, συντάσσει δήλωση ΕΚ συμμόρφωσης για κάθε τύπο εξοπλισμού με την οποία πιστοποιείται ότι ο εξοπλισμός αυτός συμμορφώνεται με τις διατάξεις της παρούσας απόφασης. Το ελάχιστο περιεχόμενο της εν λόγω δήλωσης συμμόρφωσης καθορίζεται στο παράρτημα ΙΙ.
2. Όταν ο εξοπλισμός διατίθεται στην αγορά ή τίθεται σε λειτουργία εντός της χώρας η αρμόδια αρχή μπορεί να απαιτεί η δήλωση συμμόρφωσης να είναι συντεταγμένη ή μεταφρασμένη στα ελληνικά ή σε κάποια άλλη από τις επίσημες γλώσσες των Ευρωπαϊκών Κοινοτήτων.
3. Ο κατασκευαστής εξοπλισμού ή ο εκπρόσωπός του, διατηρούν υπόδειγμα της δήλωσης ΕΚ συμμόρφωσης επί δέκα έτη μετά την τελευταία ημερομηνία παραγωγής του εξοπλισμού μαζί με τον προβλεπόμενο στο παράρτημα V σημείο 3, παράρτημα VI σημείο 3, παράρτημα VII σημείο 2, παράρτημα VIII 3.1 και 3.3, τεχνικό φάκελο.».
Στον πίνακα για τον τύπο εξοπλισμού «Ηλεκτροπαραγωγά ζεύγη συγκόλλησης και ηλεκτροπαραγωγά ζεύγη ισχύος», στη δεύτερη στήλη, τρίτη γραμμή, η τιμή «10>Pel» διορθώνεται με την τιμή «Pel>10».
Η ισχύς της παρούσας απόφασης αρχίζει από τη δημοσίευσή της στην Εφημερίδα της Κυβερνήσεως.
Η απόφαση αυτή να δημοσιευθεί στην Εφημερίδα της Κυβερνήσεως.
Aθήνα, 27 Αυγούστου 2025
Οι Υπουργοί
|
Εθνικής Οικονομίας και Οικονομικών ΚΥΡΙΑΚΟΣ ΠΙΕΡΡΑΚΑΚΗΣ |
Εσωτερικών ΘΕΟΔΩΡΟΣ ΛΙΒΑΝΙΟΣ |
|
Αναπληρωτής Υπουργός Υποδομών και Μεταφορών ΚΩΝΣΤΑΝΤΙΝΟΣ ΚΥΡΑΝΑΚΗΣ |
Περιβάλλοντος και Ενέργειας ΣΤΑΥΡΟΣ N.ΠΑΠΑΣΤΑΥΡΟΥ |
|
Υφυπουργός Ανάπτυξης ΛΑΖΑΡΟΣ ΤΣΑΒΔΑΡΙΔΗΣ |